*     home     *     portofoliu     *     articole     *     servicii     *     contact     *
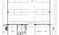
MAGAZIN+DEPOZIT ROMSTAL

SEDIU FIRMA PITESTI– intravilanul municipiului Iasi, strada Pantelimon Halipa, zona Nicolina , amplasat in sector cadastral 59, parcela nr.1

Suprafata construita totala (magazine+depozit)= 1146,06mp

Suprafata desfasurata totala=1752mp

Regim de inaltime  –P+2

Sistem constructiv - fundatii izolate legate cu grinzi  de beton armat, cadre de beton armat, plansee de beton armat si acoperis din panouri termoizolante  de tip “ROMPAN”.

 

PROIECTUL ANTERIOR



PROIECTUL URMATOR »


Pentru intrebari:
arh. Alina Radu *   portofoliu   *   articole   *   servicii   * arh. Horatiu Radu
tel: 0722 744 515 tel: 0722 208 008
email: alina@ramart.ro www.ramart.ro email: horatiu@ramart.ro