*     home     *     portofoliu     *     articole     *     servicii     *     contact     *
ANSAMBLU LOCUINTE UNIFAMILIALE VOLUNTARI

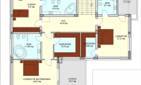
Case orasul Voluntari, judetul Ilfov.

Suprafata construita=240mp

Suprafata desfasurata=450,6mp

Regim de inaltime - P+1

Proiectul prezinta realizarea unor locuinte unifamiliale cu doua niveluri, respectiv parter si etaj.

Structura de rezistenta este alcatuita din fundatii de beton armat, pereti structurali din zidarie de caramida  armati  cu samburi de beton. Acoperirea este cu sarpanta de lemn.
 

PROIECTUL URMATOR



PROIECTUL URMATOR »


Pentru intrebari:
arh. Alina Radu *   portofoliu   *   articole   *   servicii   * arh. Horatiu Radu
tel: 0722 744 515 tel: 0722 208 008
email: alina@ramart.ro www.ramart.ro email: horatiu@ramart.ro